Tovább a tartalomra

Eladó 80m2-es tégla ház Téten a Kis Közben

Tulajdonságok

Új építésű családi ház eladó Téten, a Kis közben – modern otthon nyugodt környezetben

Tét csendes, folyamatosan fejlődő részén, a Kis közben, új építésű házak szomszédságában eladó egy 80 m²-es, új építésű tégla családi ház, amely ideális választás családoknak vagy azoknak, akik modern, kényelmes otthonra vágynak.

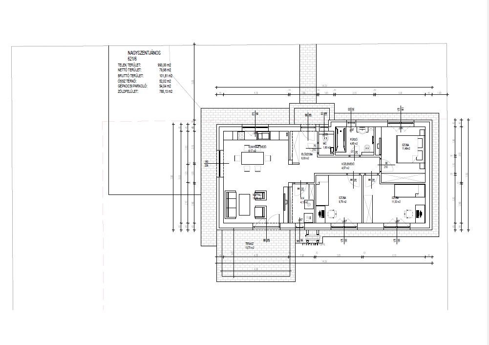
Az ingatlan praktikus elrendezéssel készül, amely a mindennapi élet kényelmét szolgálja. A házban 3 hálószoba, egy tágas nappali-konyha, fürdőszoba, valamint külön WC kerül kialakításra, így minden családtag számára biztosított a megfelelő élettér.

A telek mérete elegendő helyet biztosít kerti tevékenységekhez, pihenőkert kialakításához, gépkocsi-beálló létesítéséhez, vagy akár egy medence megépítéséhez is, így az udvar a család kedvenc közösségi terévé válhat.

Az ingatlan modern technológiával épül, a korszerű igényeknek megfelelően. A fűtési rendszerhez választható gázkazán vagy hőszivattyú, mindkettő padlófűtéses rendszerrel, amely energiahatékony és komfortos hőérzetet biztosít az év minden időszakában.

Az ár tartalmazza a telek árát és a kulcsrakész kivitelezést, így Önnek már csak költöznie kell. A tervek még igény szerint módosíthatók!

Átadás várhatóan a szerződéskötéstől számított 10–12 hónapon belül.

Tét elhelyezkedése és infrastruktúrája

Tét egy kedvelt, folyamatosan fejlődő település, amely ideális választás azok számára, akik nyugodt környezetben szeretnének élni, mégis fontos számukra a városi közelség. A településen orvosi rendelő, gyógyszertár, bölcsőde, óvoda és általános iskola is megtalálható, így a mindennapi élethez szükséges szolgáltatások helyben elérhetők.

Győr közelsége különösen előnyös: a város autóval körülbelül 20–25 perc alatt elérhető, így a munkába járás vagy ügyintézés gyorsan és kényelmesen megoldható. A település jó közlekedési kapcsolatokkal rendelkezik, ami tovább növeli vonzerejét.

Csapjon le most erre az ingatlanra, mert nagyon kevés új építésű ingatlan érhető már el Téten!


Eladó

Bruttó vételár: 76 300 000 Ft

Nettó ár: 72 666 667 Ft

Az árak tájékoztató jellegűek.
A személyes egyeztetést követően illetve az ingatlan műszaki paraméterétől függően változhatnak.

Érdekel ez az ingatlan? Lépjen kapcsolatba velünk!

Cookie-k hozzájárulása

Weboldalunk használatának legjobb élménye érdekében szükségünk van az Ön hozzájárulására a cookie-k feldolgozásához. Ezek kis fájlok, amelyeket ideiglenesen a böngészője tárol. Köszönjük, hogy megadta nekünk, és segít nekünk a weboldal további fejlesztésében.