Tovább a tartalomra

Eladó 93m2-es tégla ikerház Écsen

Tulajdonságok


Écsen kiváló lehetőség – panorámás ikerház hatalmas telekkel, modern kialakítással

Écs közkedvelt, nyugodt részén kivételes lehetőség kínálkozik: hatalmas telken épülő, két különálló ikerház, amelyek saját, 850 m²-es telekrésszel rendelkeznek, így ideális választást jelentenek családosok számára.

Az ingatlan különlegessége az egyedülálló panoráma:

a hátsó telekrészről örök panoráma nyílik Pannonhalmára, míg az első telekrészről az écsi dombok látványa teszi igazán hangulatossá a mindennapokat.

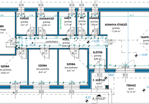
Főbb jellemzők

Lakóterület: 93 m²

Telekrész: 850 m² / lakás

Építési mód: tégla

Szobák száma: 4 szoba

Fürdőszobák: 2 külön fürdőhelyiség

Nappali: amerikai konyhás nappali

Elrendezés: praktikus, családbarát kialakítás

Állapot: új építésű, kulcsrakész átadással

Átadás: szerződéskötéstől számított várhatóan 10–12 hónapon belül

Tervek: igény szerint módosíthatók

A ház tégla építésű, modern technológiával készül, praktikus elrendezéssel és korszerű kialakítással. A 4 szoba és a 2 külön fürdőhelyiség nagyobb családok számára is ideális életteret biztosít, míg az amerikai konyhás nappali a családi élet központi helyszíne lehet.

A nagy méretű telek kiváló lehetőséget biztosít kert kialakítására, játszótér, medence vagy akár kerti pihenő kialakítására is.

A tervek még igény szerint módosíthatók, így az ingatlan könnyedén az új tulajdonos elképzeléseihez igazítható.

Műszaki tartalommal és további részletekkel kapcsolatban keressenek bizalommal!

Écs elhelyezkedése – természetközeli nyugalom, kiváló megközelíthetőséggel

Écs az egyik legkedveltebb település a Győr környéki dombvidéken, amely ideális választás azok számára, akik nyugodt, zöld környezetben szeretnének élni, mégis közel maradnának a városhoz.

Győr mindössze kb. 10–15 perc autóval, így a munkába járás gyorsan és kényelmesen megoldható.

Pannonhalma néhány perc alatt elérhető, ahol számos turisztikai és kulturális lehetőség várja az ott élőket.

A település kiváló elhelyezkedésének köszönhetően egyszerre kínál csendes, természetközeli életet és jó közlekedési kapcsolatokat.

Écsen a mindennapi élethez szükséges alapvető szolgáltatások elérhetők:

óvoda és általános iskola

orvosi rendelő és egészségügyi ellátás

helyi üzletek és szolgáltatások

rendszeres közlekedési lehetőség Győr irányába

A környező dombvidék, a természet közelsége és a panorámás kilátás különleges életminőséget biztosít az itt élők számára.

Foglalja le álmai otthonát még most, hogy már jövő nyáron érezhesse a beköltözés örömét!

Eladó

Bruttó vételár: 85 400 000 Ft

Nettó ár: 81 333 333 Ft

Az árak tájékoztató jellegűek.
A személyes egyeztetést követően illetve az ingatlan műszaki paraméterétől függően változhatnak.

Érdekel ez az ingatlan? Lépjen kapcsolatba velünk!

Cookie-k hozzájárulása

Weboldalunk használatának legjobb élménye érdekében szükségünk van az Ön hozzájárulására a cookie-k feldolgozásához. Ezek kis fájlok, amelyeket ideiglenesen a böngészője tárol. Köszönjük, hogy megadta nekünk, és segít nekünk a weboldal további fejlesztésében.